KALEIDOSCOPE (NETFLIX), 2023
PRODUCTION DESIGN by MICHAEL BRICKER | SUPERVISING ART DIRECTOR: JOHN COX |ART DIRECTOR: CHRIS THOMPSON
ASSISTANT ART DIRECTORS: GRACE LAUBACHER, COLIN MCGURK, LISA MERIK, REID THOMPSON
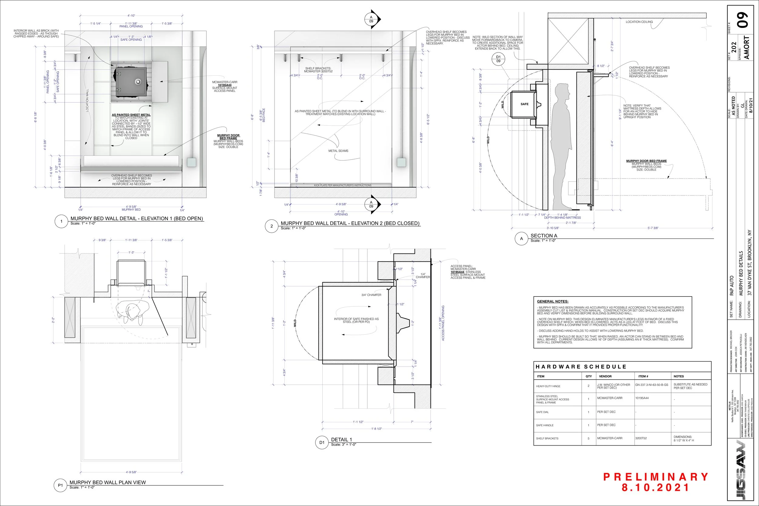
DESIGN DEVELOPMENT & CONSTRUCTION DRAWINGS FOR LEO PAP’S AUTO SHOP, INCLUDING STUNT MURPHY BED FOR SHOOTOUT SCENE
![FireShot Capture 010 - Netflix - [www.netflix.com].png](https://images.squarespace-cdn.com/content/v1/665092d1f716e70f73279464/4a8714d8-3e7d-49d6-80cd-a893b1be2118/FireShot+Capture+010+-+Netflix+-+%5Bwww.netflix.com%5D.png)

![FireShot Capture 004 - Netflix - [www.netflix.com].png](https://images.squarespace-cdn.com/content/v1/665092d1f716e70f73279464/8f0c8ac4-e2d2-452d-8abb-4aa6d62b3bad/FireShot+Capture+004+-+Netflix+-+%5Bwww.netflix.com%5D.png)
![FireShot Capture 005 - Netflix - [www.netflix.com].png](https://images.squarespace-cdn.com/content/v1/665092d1f716e70f73279464/56b5416d-7d3f-487c-9f1a-74c2780a1808/FireShot+Capture+005+-+Netflix+-+%5Bwww.netflix.com%5D.png)
![FireShot Capture 006 - Netflix - [www.netflix.com].png](https://images.squarespace-cdn.com/content/v1/665092d1f716e70f73279464/ccdf3b63-28ad-49c7-96ec-ce232f33e323/FireShot+Capture+006+-+Netflix+-+%5Bwww.netflix.com%5D.png)
![FireShot Capture 007 - Netflix - [www.netflix.com].png](https://images.squarespace-cdn.com/content/v1/665092d1f716e70f73279464/5cb32b71-7e0d-4e46-b514-b1ff4f378eca/FireShot+Capture+007+-+Netflix+-+%5Bwww.netflix.com%5D.png)
![FireShot Capture 002 - Netflix - [www.netflix.com].png](https://images.squarespace-cdn.com/content/v1/665092d1f716e70f73279464/00c24e10-ad0d-4f2f-9482-62aeaf529c03/FireShot+Capture+002+-+Netflix+-+%5Bwww.netflix.com%5D.png)
